studio 

Instagram @studio.lcd
Facebook

Verhandlungverfahren 

bearbeitet bei Gatermann+Schossig

1. Platz

Auslober: BLB NRW Düsseldorf

Nutzer: LKA Nordrhein Westfalen

Ort: Düsseldorf

BGF:60.000 m²

Bearbeitungszeit: 2007

LKA NRW Düsseldorf

Visualisierung: HH-Vision

Der Neubau des Landeskriminalamtes NRW in Düsseldorf ist ein wesentlicher Beitrag zur Weiterentwicklung des Behördenstandortes Völklinger Straße. Unter Berücksichtigung der vorhandenen orthogonalen städtebaulichen Strukturen wurde eine geschlossene Bebauung konzipiert, die sich in drei Gebäudeteile untergliedert und damit die Nutzung funktional optimiert. Eine offen gestaltete, gläserne Eingangshalle verbindet den Verwaltungsbereich mit dem Kriminaltechnische Institut. 


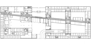
Trotz hoher Sicherheitsanforderungen zeichnet sich das Gebäude dank seiner gläserne Eingangshalle durch eine offene, kommunikative Transparenz nach außen aus. Von diesem zentralen Zugang werden über eine die Baukörper schräg durchlaufende Magistrale alle Bereiche erschlossen. Der Künstler Peter Kogler gewann den ausgelobten Kunstwettbewerb zur Gestaltung dieser Hauptachse. Der erdgeschossige Weg führt an attraktiven Innenhöfen entlang, die auch von den Sitzungsräumen aus nutzbar sind, und ermöglicht eine klare Orientierung im Gesamtgebäude. 


Der Aspekt der Nachhaltigkeit wurde unter ökologischen, ökonomischen und sozialen Belangen Basis des Konzeptes. Dies führte zu einem flächen- und raumsparenden Entwurf mit reduzierten Hüllflächen sowie wirtschaftlichen Erstellungs- und insbesondere Betriebskosten. Teil des energetischen Konzeptes sind u.a. der Einsatz von Geothermie, Bauteilaktivierung und natürlicher Lüftung.


DIESE WEBSITE VERWENDET COOKIES


Durch die Benutzung der Website und das Klicken auf Links erklären Sie sich damit einverstanden Cookies zu verwenden.