studio 

Instagram @studio.lcd
Facebook

Wohnen

Standortanalyse

Musterentwurf

Ort: Königswinter

Klient: Privat

BGF: 625 m²

Wohneinheiten: 4

Bearbeitungszeit: 2015

Wohnhaus Flurgasse

Visualisierung: Studio LCD

Ziel der Untersuchung war die Überprüfung der maximal sinnvollen und genehmigungsfähigen Beabauungsmöglichkeit auf dem Grundstück zu prüfen.


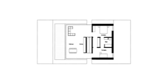
Der Entwurf sieht eine Baukörper mit vier Wohneinheiten vor, die sehr Effizient mit einem einläufigen Treppenhaus ohne Podestumgang erschlossen werden können.


Im Erdgeschoss sind zwei Einheiten mit Garten untergebracht. Im ersten Obergeschoss zwei weitere Einheiten, die zurückspringende Terassenflächen erhalten. Dabei ist die letzte Einheit als Maisonette ins dritte Obergeschoss erweitert.


Die stringente Form entsteht aus rein funktionaler Überlegen und erhält seine Eleganz durch Reduzierung der Oberflächen auf regelmäßige Sichtbetonscheiben.


DIESE WEBSITE VERWENDET COOKIES


Durch die Benutzung der Website und das Klicken auf Links erklären Sie sich damit einverstanden Cookies zu verwenden.