studio 

Instagram @studio.lcd
Facebook

Wohnbau 

Entwicklungkonzept

Bauphasenstrategie

Getaltungskonzept

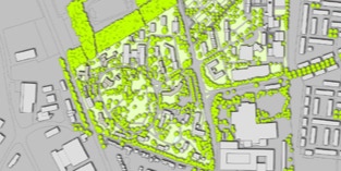
Masterplan

Klient: Diakonie Michaelshoven

Ort: Michaelshoven Köln 

BGF: 70.600 m²

Bearbeitungszeit: 2009 – 2010

Masterplan Campus Michaelshoven

Visualisierungen: Studio LCD

Das Campusgelände besteht aus einer weitläufigen Parklandschaft mit einem locker bebautem Ensemble aus den fünfziger Jahren. Teile des Ensembles sind denkmalgeschützt, allerdings können einige Gebäude den Ansprüchen moderner Sozialeinrichtungen nicht mehr gerecht werden. 


Daher wurde um den denkmalgeschützten Kernbereich eine leichte Verdichtung für barrierefreies Wohnen vorgeschlagen, das den Kern des Parkes nicht tangiert. Hierzu sollten auch die Verwaltungseinheiten der einzelnen sozialen Dienste konzentriert werden. Ein festgelegte Gestaltungskonzept ergänzt den Masterplan, um Material- und Detailqualitäten für die Zukunft zu gewährleisten und die Ensemblewirkung weiter zu stärken.


DIESE WEBSITE VERWENDET COOKIES


Durch die Benutzung der Website und das Klicken auf Links erklären Sie sich damit einverstanden Cookies zu verwenden.